About Services Process Portfolio Eiram Acire Start a Project

Northern Illinois & Southern Wisconsin

Crafting Spaces of
Enduring Excellence

Architectural design and high-end cabinet solutions that transform residences into refined living environments — built with precision, intention, and lasting beauty.

Serving Our Region
Fox River Grove, IL Northern Illinois Southern Wisconsin Illinois–Wisconsin State Line Area
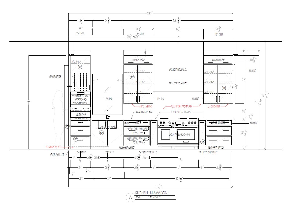
Maronde Enterprises – Kitchen Elevation CAD Drawing
12+ Years of Craft

About Maronde Enterprises

Where Architecture
Meets Artistry

Maronde Enterprises is a premier architectural design firm based in Fox River Grove, Illinois, specializing in high-end cabinet design and comprehensive residential remodels. We bring together disciplined design thinking and master-level craftsmanship to create spaces that are both functionally superior and visually extraordinary.

Whether transforming a single room or overseeing a complete home renovation, our team approaches every project with the same commitment to quality, transparency, and client collaboration that has defined us from day one.

100+ Projects Completed
100% Client Satisfaction
2 Specialized Brands
Local Northern IL & S. Wisconsin

What We Do

Our Expertise

From concept through completion, Maronde Enterprises delivers comprehensive design and build services tailored to the unique vision of each client.

01

High-End Cabinet Design

Custom cabinetry conceived and built to exacting standards — from kitchen and bath to entertainment centers and built-in storage. Every detail considered, every joint perfected.

Learn More
02

Residential Remodels

Full-scope residential renovations designed and managed with care. We coordinate every phase — design, material selection, construction oversight — to deliver seamless transformations.

Learn More
03

Architectural Design

Thoughtful architectural planning that balances aesthetic ambition with practical livability. We translate your vision into precise, buildable plans that stand the test of time.

Learn More

Completed Projects

Designed by Us

From concept drawing to final installation — every detail designed in-house and executed with the craftsmanship our clients expect.

Private Residence – Lower Level Lounge & Custom Bar
Residential Remodel

Private Residence

Lower Level Entertainment — Custom Cabinetry & Bar Design

Private Residence – Custom Bar with Wine Cooler
Wet Bar & Wine Storage — High-gloss custom cabinetry with marble countertops
Private Residence – Custom Built-in Office & Display Cabinetry
Office Built-in — Matte black custom cabinetry with brass hardware & marble top
From Blueprint to Reality

Every Detail Drawn First

All Maronde Enterprises projects begin with precision CAD drawings — toggle between design and finished installation to see how the vision becomes reality.

Basement Elevation CAD Drawing – Scale ½″=1′-0″ Private Residence – Lower Level Entertainment Space
Basement Elevation E — Scale ½″=1′-0″ · Column panels painted SW-9650 Cracked Pepper, high gloss · 8″ flat stock furniture base throughout
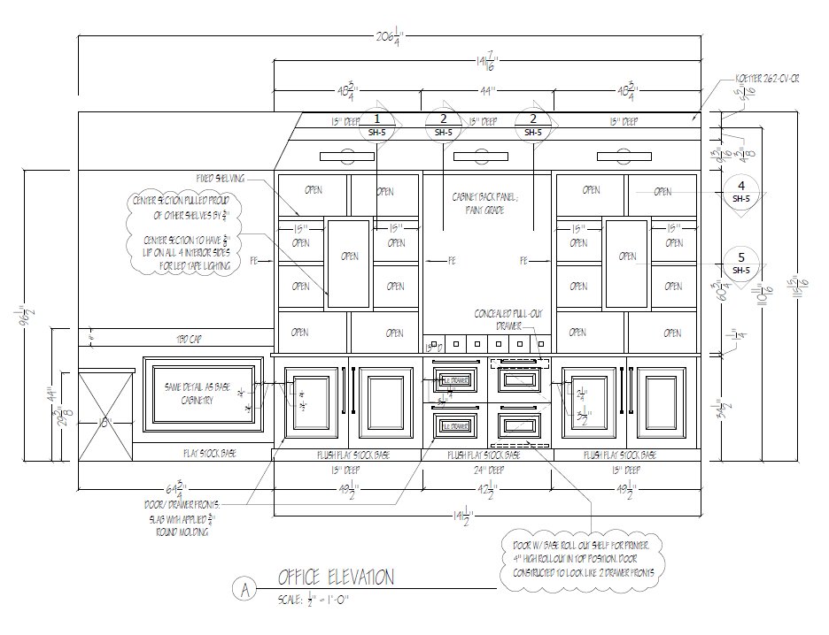
Office Elevation A CAD Drawing – Scale ½″=1′-0″ Private Residence – Custom Built-in Office Cabinetry
Office Elevation A — Scale ½″=1′-0″ · Center section pulled proud with LED tape lighting · Concealed pull-out drawer · Slab doors with applied ¾″ round molding
A Maronde Enterprises Company Eiram Acire – Quality First

Eiram Acire is the fine woodworking studio operating under the Maronde Enterprises family — dedicated to handcrafted, one-of-a-kind pieces that elevate any space. Every creation is an original, born from premium materials and guided by the traditions of true artisan craftsmanship.

  • Heirloom-quality custom furniture & built-ins
  • Hand-selected hardwoods & reclaimed materials
  • Bespoke range hoods, barn doors & millwork
  • Custom home offices & display cabinetry
  • Collaborative design from concept to installation
Inquire About Custom Work
Custom reclaimed wood range hood – Private Residence
Custom built-in home office – slate blue cabinetry with reclaimed wood desk
Custom Home Office Built-in — Slate Blue Cabinetry with Reclaimed Wood Desk & Brass Hardware
Custom reclaimed wood barn doors and range hood – Private Residence
Bespoke Reclaimed Wood Barn Doors & Range Hood — Custom Hardware & Pantry Entry
Custom hardwood parquet floor inlay with ebony border
Custom Parquet Inlay — Hand-laid Herringbone with Ebony & Maple Border
Craftsman at work in the shop
Precision at Every Stage — Skilled Craftsmanship from Shop to Site

How We Work

Our Process

Step 01

Discovery & Vision

We begin with a thorough consultation to understand your goals, lifestyle, aesthetic preferences, and project scope. No assumptions — only listening.

Step 02

Design & Planning

Our team develops detailed architectural plans and design concepts, presenting materials, finishes, and layout options for your review and refinement.

Step 03

Build & Craft

Skilled craftsmen bring approved plans to life with precision and care. We manage timelines, trade coordination, and quality control at every stage.

Step 04

Delivery & Beyond

We walk through every detail together at completion and remain available for any questions or follow-up needs — long after the project is done.

Get In Touch

Let's Build
Something Remarkable

Ready to start a project or simply want to explore possibilities? We'd love to hear from you. Reach out and a member of our team will be in touch promptly.

Address 400 Park Ave
Fox River Grove, IL 60021
Phone 815-414-1404
Service Area Northern Illinois & Southern Wisconsin